Sign In
Register
Primary Menu
Home
Buying
Properties for Sale
Project Listings
Commercial Listings
Open Homes
Auction Timetable
Buying Tips
Property Alert
Selling
Selling Tips
Market Appraisal
Recent Sales
Renting
Properties for Lease
Commercial for Lease
Rental Open Homes
Guide to Renting
Tenant Forms
Lease Appraisal
Leased Properties
Rental Property Alert
News
About Us
Company Profile
Our Team
Testimonials
Careers
Contact Us
Sign In
Register
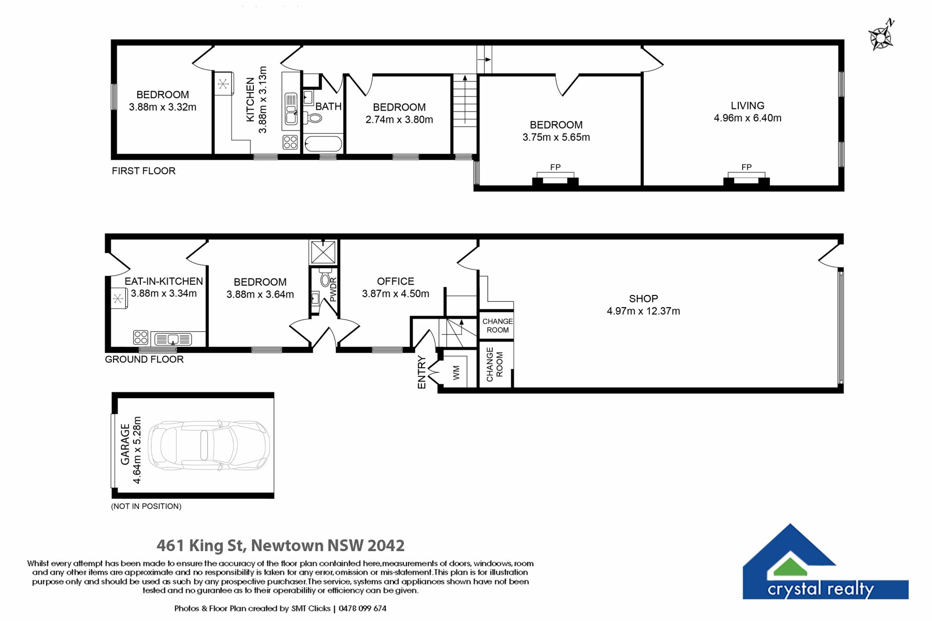
Property ID: 1P2741
461 King Street Newtown NSW
$ 2,050,000
Type
Retail
Contract
Sold
Building Size
193 sqm
More Details
SOLD OFF MARKET
More Details
Agents
May Aoun
may@crystalrealty.com.au
0416 027 086
0416 027 086
View Profile
Email a Friend
Your Name
*
Your Email
*
Friend's Name
*
Friend's Email
*
Message
*
Submit
Enquiry Form
Regarding
*
General Enquiry
Rental Enquiry
Sales Enquiry
First Name
*
Last Name
*
Email
*
Phone
*
Comments
*
Δ
Email
First Name
*
Last Name
*
Email
*
Mobile
*
Enquiry
*
Submit
Email
First Name
*
Last Name
*
Phone
*
Email
*
Comments
*
Submit
Bookmark Property